DONCASTER
- The Chapel Doncaster – Licensed Restaurant, Bar & Event Venue
£ 1,500,000
DONCASTER
Other
INVESTMENT OPPORTUNITY
12-09-2025
Description
Historic Church Redevelopment – Licensed Restaurant, Bar & Event Venue | Doncaster
- Guide Price: £1,250,000
- Expected Completion: October 2025
- Projected Rental Income: £7,000 per month (£84,000 per annum)
- Projected Yield: ~6.7%
A Landmark Investment Opportunity
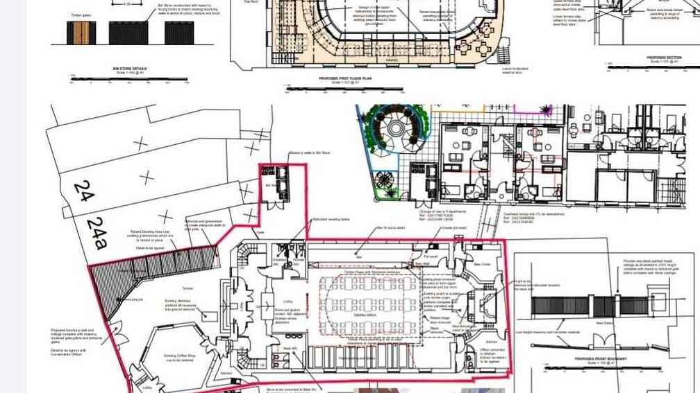
BDN Elite Properties is proud to present this former historic church in Doncaster, which is being meticulously redeveloped into a fully licensed restaurant, bar, café, and event venue. With all required licences already secured, there is no further work or cost needed for regulatory approval – providing a ready-to-trade commercial asset upon completion in October 2025.
This striking property combines heritage character with modern commercial design, offering investors and operators an exceptional chance to acquire a landmark destination venue in one of Yorkshire’s most vibrant and growing towns.
Property Overview
- Two floors of adaptable commercial space, ideal for multiple hospitality layouts.
- Generous capacity of 300–350 guests, making it suitable for both daily trade and large-scale events.
- Three private car parking spaces included with the freehold, plus an adjacent public car park with direct access from the avenue, ensuring excellent convenience for customers and event guests.
- Large landscaped front garden, perfect for outdoor seating, al fresco dining, or event receptions.
- Infrastructure designed to meet modern hospitality standards while preserving the building’s architectural character.
A Multi-Purpose Venue
With its size, licensing, and design, the property is versatile and suitable for a wide variety of commercial uses:
- Restaurant & Wine Bar – with ample dining capacity.
- Café or Brasserie – benefiting from daytime and casual trade.
- Event Venue – ideal for weddings, receptions, private parties, business conferences, gala dinners, and cultural events.
- Entertainment Venue – concerts, live performances, and community gatherings.
This flexibility ensures the property can serve as a year-round income generator across multiple customer segments.
Location Advantages
- Situated in central Doncaster, a well-connected Yorkshire hub.
- Excellent road links via the A1(M) and M18 motorways, connecting easily to Sheffield, Leeds, and York.
- Doncaster railway station provides direct access to London, Leeds, and other major UK cities.
- Growing regional economy supported by recent infrastructure investment, retail growth, and increasing tourism.
- Positioned close to residential areas and local attractions, ensuring strong customer footfall and repeat business opportunities.
Investment Highlights
- Projected rental income: £7,000 per month / £84,000 annually.
- Sale price: £1.25M.
- Projected yield: ~6.7% per annum.
- Licences completed – fully approved, saving time and cost.
- Completion by October 2025, ready for occupation and immediate operation.
- Unique landmark venue with long-term capital appreciation and income potential.
A Secure Choice for International Buyers
For overseas investors, this property offers a ready-made, income-producing opportunity in the UK hospitality market. With no licensing delays and strong projected yields, it is a secure and attractive commercial investment with long-term growth potential.
⚠️ Disclaimer:
All plans, visuals, and images are for illustration purposes only. Final appearance and internal layout may vary upon completion. Full documentation and detailed investment packs are available upon request.
Floorplans
Sorry, we do not have any floorplan files at this time.
Brochures
Sorry, we do not have any brochure files at this time.
EPC
Sorry, we do not have any epc files at this time.